JACK-IN FINOR-110, F 19 0,5 BAR

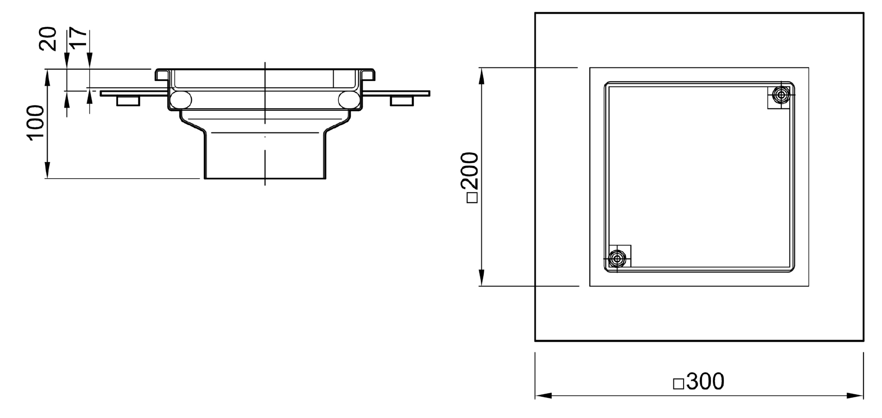
Spol- och rensbrunn för inbyggd horisontell spillvattenledning inomhus. Avsedd att gjutas in i golv, finns i olika utföranden för olika golvbeläggningar, belastningsklasser samt med eller utan klämfläns för tätskikt. Ställbarhet i höjdled varierar mellan modellerna.
Info 1 Art nr Dok Info 2 Bruttopris inkl. moms
7149241
Dimension: 110
Funktion: Betong-klinkergolv m.tätskikt
Färg: Rostfri
Innehavare: ACO Nordic AB
Leverantörens art.nr.: 9288.11.01
Material: Rostfritt stål 1.4301
Tryck/Flöde/Temp: 0,5 Bar
Utförande: Lock u. fyllning, klass K3
Varumärke: ACO FINOR
Ytbehandling: Obehandlad
Övrig info: Låsskruvar i M4, ansl. botten