WC-FIXTUR SOLIDO 5IN 1 M. EURO CERAMIC WC

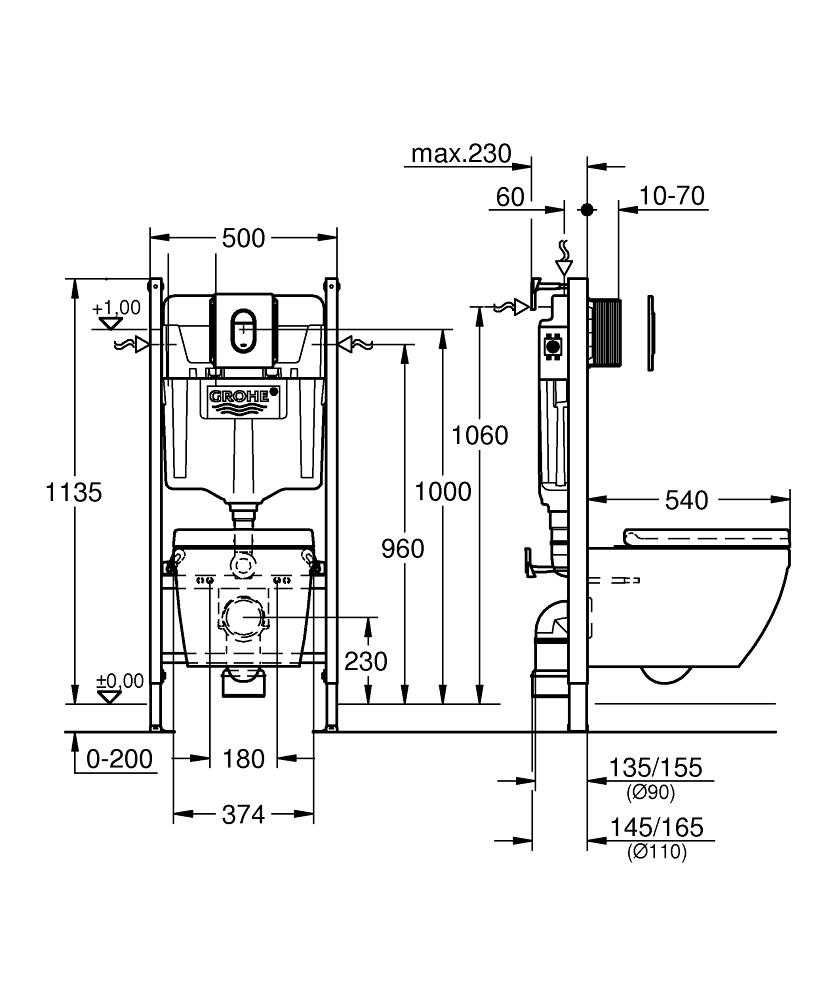
Solido 5-in-1 set m WC, 113 cm Cistern GD 2 Bestående av: Solido Compact element for WC (38 939 000) Euro Ceramic wall hung WC, 3/5 l (39 538 000) Euro Ceramic WC seat with lid (39 330 001) Arena Cosmopolitan flush plate, chrome, vertical installation (38 844 000) Rapid SL Väggvinkel (38 558 00M) Rapid SL wall brackets (38 733 000) Ljudisolerande-set (37 131 000)
Info 1 Art nr Dok Info 2 Bruttopris inkl. moms
8000154
Färg: alpinvit/blå
Innehavare: GROHE A/S Danmark Filial
Leverantörens art.nr.: 39698000
Material: porslin/stål
Storlek: 1135x500mm
Utförande: med WC och väggplatta
Varumärke: Grohe