ACO OLJEAVSKILJARE O LEOPATOR BYPASS G 15/150-1500

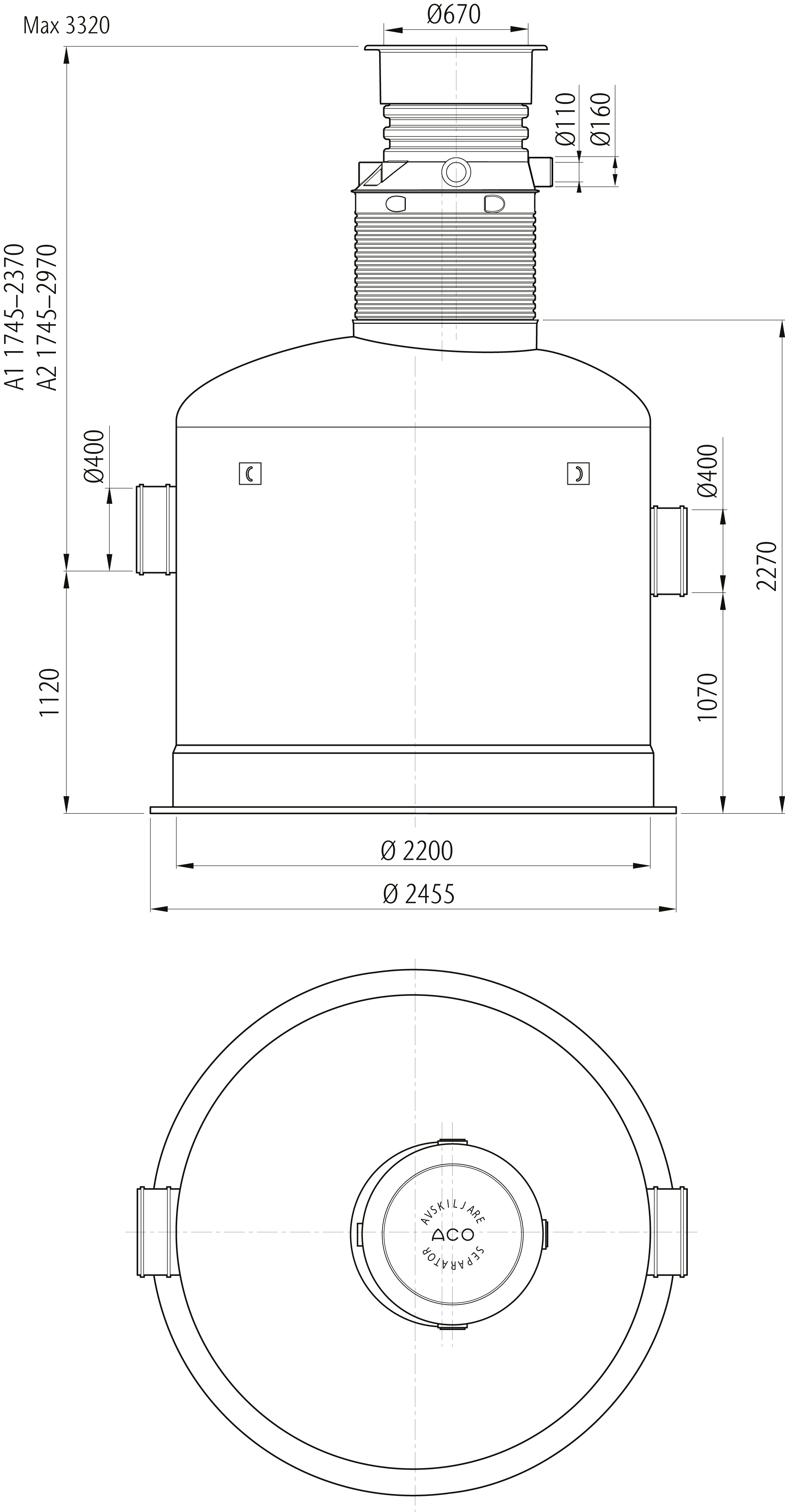
Oleopator Bypass G är avsedd för behandling av oljehaltigt dagvatten med höga krav på reningsgrad. Oleopator Bypass G är en bypass avskiljare, där reglering av flödet sker helt utan rörliga delar. Vid avvattning av större ytor med höga regnflöden är det lämpligt att installera ett bypassystem som leder överskottet förbi avskiljaren som skydd mot överbelastning. A1-mått 1745-2370 mm
Info 1 Art nr Dok Info 2 Bruttopris inkl. moms
5510731
Dimension: DN 400
Funktion: behandlar spill- och dagvatten
Färg: beige
Innehavare: ACO Nordic AB
Leverantörens art.nr.: 12550.61
Material: glasfiberarmerad polyester
Storlek: 15 l/s
Utförande: med hals och betäckning
Varumärke: ACO
Övrig info: oljevskiljare, mark